В связи с изменением стоимости товаров поставщиками, актуальность цен уточняйте у менеджеров!

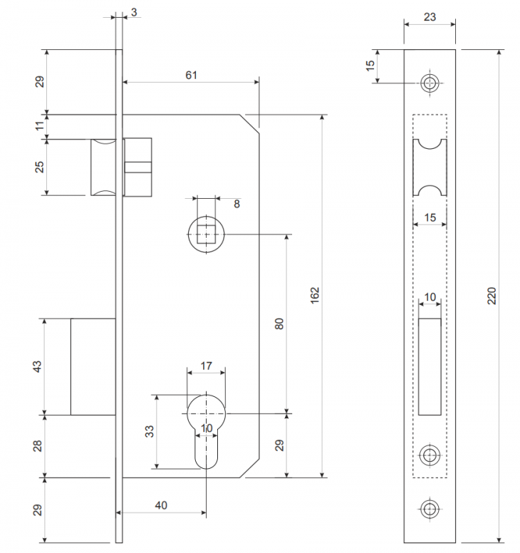
Замок врезной Apecs 1330/60-CR

Описание:

Межосевое расстояние:80 мм
Защелка:Универсальная
Удаление ключевого отверстия (Backset):40 мм
Цвет :Хром
Автоматическое запирание:Не автоматическое
Тип механизма секретности:Цилиндровый
Количество ключей:5
Тип ригелей:Классический прямоугольный
Способ запирания изнутри:Ключом
Размер цилиндра:30/30
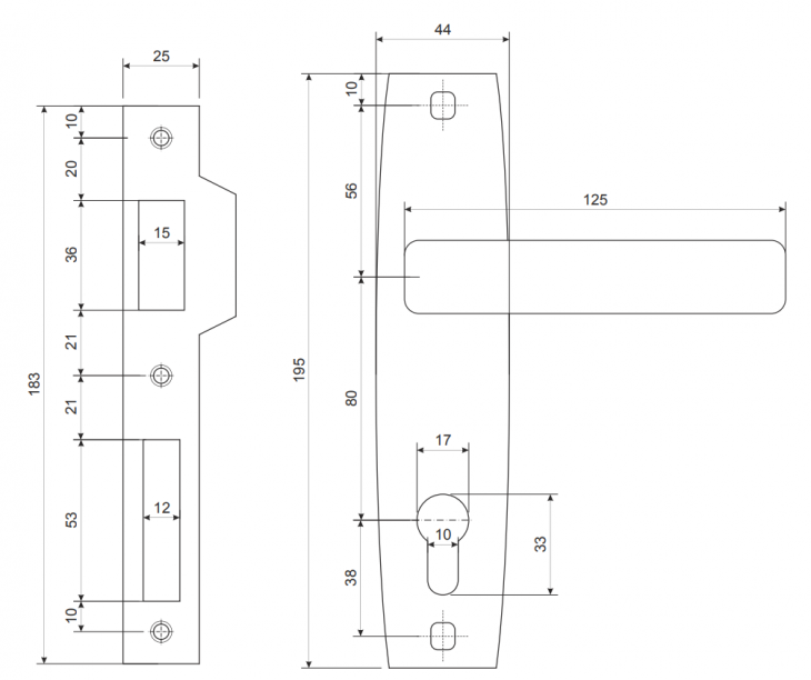
Комплектация ручками:Комплектуется
Комплектация цилиндром:Комплектуется
Материал ручки:Алюминий/Гальваника
Способ установки :Стяжки
Производитель:Apecs, КНР

Дополнительно:

Врезной замок  представляет собой прочную конструкцию, которая поставляется в сборе с ручками и цилиндром. Замок устанавливается в межкомнатные или входные (легкие)двери при помощи лицевой планки.

Замок врезной Apecs 1330/60-CR
3500 руб.